Používame cookies na optimalizáciu našich webových stránok a našich služieb. Ďalšie informácie o cookies nájdete tu.

Nastavenie


Na predaj rodinný dom vo Svätom Antone

Na predaj rodinný dom vo Svätom Antone

 po rozsiahlej rekonštrukcií 

 vhodný na rekreačné bývanie 

 krásna okolitá príroda 

 

 

Venujte prosím tejto stránke pár minút Vášho času,

verím, že Vás ponuka zaujme.

 

Popis nehnuteľnosti

Ponúkame Vám na predaj rodinný dom po rekonštrukcii – 
Svätý Anton, cca 5 min od Banskej Štiavnice

Ponúkame na predaj rodinný dom v obci Svätý Anton
ktorá patrí medzi vyhľadávané lokality v tesnej blízkosti Banskej Štiavnice. 
Nehnuteľnosť sa nachádza v centre obce a vďaka svojej 
polohe je vhodná na trvalé bývanie aj rekreačné využitie.

Základné informácie
Lokalita: Svätý Anton, okres Banská Štiavnica
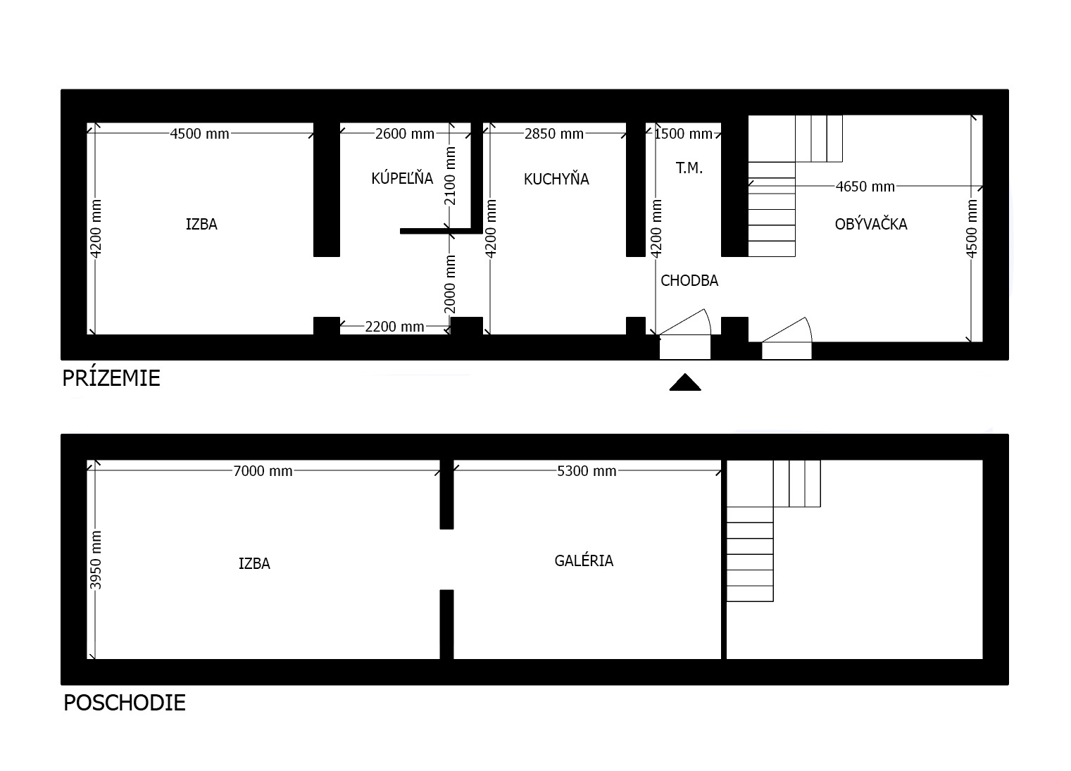
 Úžitková plocha domu: cca 117 m²
 Pozemok: 200 m²
 Zastavaná plocha: 117 m²
 Rok výstavby: približne 1869
 Stav: čiastočná rekonštrukcia
 Materiál: kameň

Dom ponúka úžitkovú plochu približne 117 m² a jeho dispozícia 
je rozdelená do dvoch podlaží. Prízemie tvorí vstupná chodba, technická 
miestnosť v kombinácii s úložným priestorom, kuchyňa, kúpeľňa a spálňa, 
čo vytvára praktické zázemie pre každodenné bývanie.

Obývacia izba s východom na pozemok cez veľké terasové dvere je 
plynulo prepojená s podkrovím. Tento priestor je možné upraviť napríklad na 
ďalšie obytné miestnosti, pracovňu alebo oddychovú zónu podľa predstáv 
nového majiteľa.

Dom prešiel veľkou a najdôležitejšou rekonštrukciou, počas ktorej boli 
vymenené rozvody elektriny, vody a kúrenia. Zároveň bola vykonaná 
izolácia podláh a osadené podlahové kúrenie. Okná boli vymenené za 
plastové s trojsklom.

Interiér si zachoval aj pôvodné prvky, najmä drevené stropy, ktoré 
dodávajú priestoru charakter typický pre staršie kamenné domy. 
Strecha je nová s krytinou Bramac a fasáda je riešená 
vápenno-cementovými omietkami. Súčasťou nehnuteľnosti je aj pivnica.

Nehnuteľnosť je vhodná pre klientov, ktorí hľadajú bývanie v pokojnom 
prostredí s dobrou dostupnosťou do mesta a zároveň ocenia možnosť 
dokončenia alebo úprav interiéru podľa vlastných predstáv.

pôdorys 

23a

video prezentácia 

 

okolie nehnutelnosti

Obec Svätý Anton je známa najmä historickým Antolským 
kaštieľom a rozsiahlym anglickým parkom. Lokalita ponúka 
pokojné bývanie v prírode a zároveň výbornú dostupnosť do Banskej Štiavnice, 
ktorá je vzdialená približne 5 km.

V okolí sa nachádza množstvo možností na turistiku, cykloturistiku,
kultúrne podujatia a oddych v prírode.

32

cena a platba 

Cena nehnuteľnosti: 195 000 €
Odovzdanie: ihneď
Energetický certifikát: nie je k dispozícii

Možnosti financovania:
• v hotovosti
• hypotekárnym úverom
(radi Vám pomôžeme s jeho vybavením)

Táto inzercia nie je verejnou ponukou na uzavretie zmluvy.
Vlastník si vyhradzuje právo voľby o tom, komu a za akých
dojednaných podmienok prevedie svoje vlastnícke právo.
Pri tejto ponuke je možné licitovať kúpnu cenu podľa všeobecných
podmienok licitácie v sieti Winners reality uverejnených
na: www.winnersreality.sk/licitacia.

 

collagescnaj

 

KONTAKT  

 Michal Mrázek

tel.: +421 911 993 241

email:  michal.mrazek@winnersgroup.sk

Michal Mrázek

Od roku 2018 som aktívny v realitnom sektore a moje predchádzajúce pracovné skúsenosti sú spojené s úctou a profesionálnym prístupom ku klientom.

Môj záujem a vášeň pre prácu realitného makléra sú evidentné v každej mojej aktivite, pričom sa snažím poskytovať služby na najvyššej úrovni. Využívam moderné metódy, ako sú video prehliadky, profesionálne fotografie, a vytváram prostredie prostredníctvom Home Stagingu. Všetko to s jednoznačným cieľom - dosiahnuť predaj vašej nehnuteľnosti za najlepšie možné podmienky, zabezpečujúc vašu plnú spokojnosť.

Vznik týchto stránok má za účel prezentovať, že aj keď sa dvaja makléri venujú rovnakým úlohám, rozdiely medzi nimi môžu byť výrazné. Oboznámte sa prosím s mojimi radami a článkami, ktoré vám môžu pomôcť pri rozhodovaní o predaji nehnuteľnosti a vybrať si správnu cestu.

Je známe, že za každým predajom nehnuteľnosti sa skrýva ľudský príbeh. Toto je dôvod, prečo považujem za dôležité nevnímať tento krok len ako obchodnú transakciu, ale ako životný krok pre každého zúčastneného - predávajúceho i makléra. Moje úsilie spočíva nielen v dosiahnutí optimálneho výsledku, ale aj v zabezpečení, aby celý proces bol pre všetkých strán pozitívnym a uspokojivým zážitkom.

Môj záväzok spočíva v poskytovaní kvalitných služieb a v dosahovaní spokojnosti klientov. Referencie spokojných klientov sú pre mňa dôkazom toho, že moja práca prináša výsledky. Ďakujem vám za váš čas a ak máte ďalšie otázky alebo záujem, neváhajte ma kontaktovať. Rád by som sa s vami stretol pri káve a prebral vaše potreby a očakávania.


Michal Mrázek

Kontaktný formulár

Stiahnuť PDF